NEGOZIO – UFFICIO per investimento a Chiaravalle

Via Repubblica 18, Chiaravalle
43.000 €

Informazioni Principali

Codice CHC094 Categoria Tipo ,

Agenzia Immobiliare

  • Agenzia: Quality Casa

Descrizione

  • Descrizione:

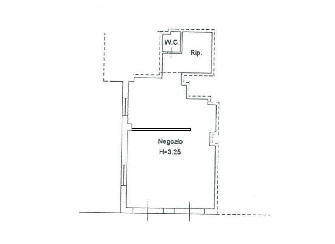
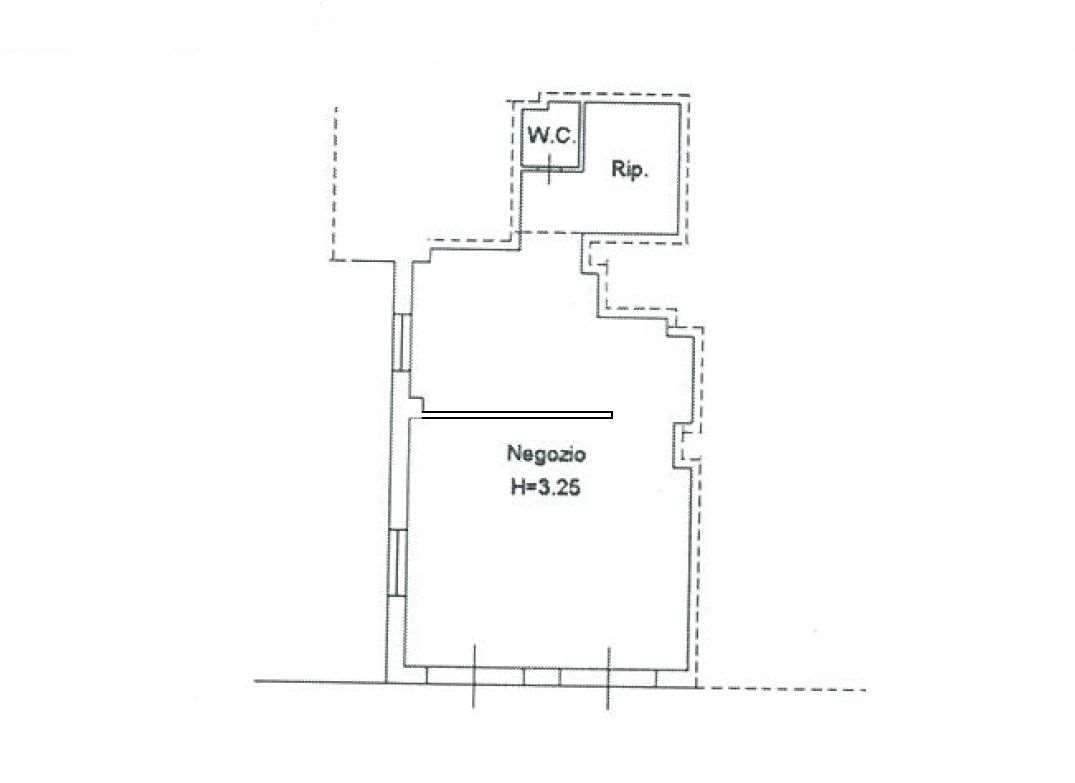
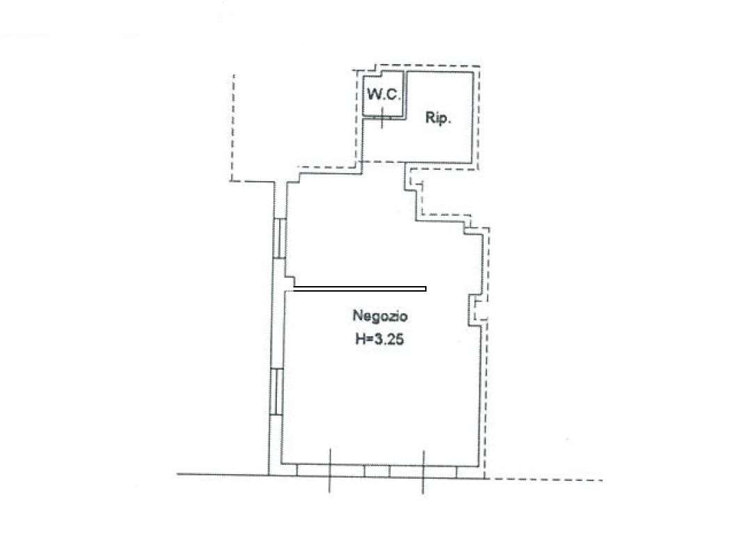
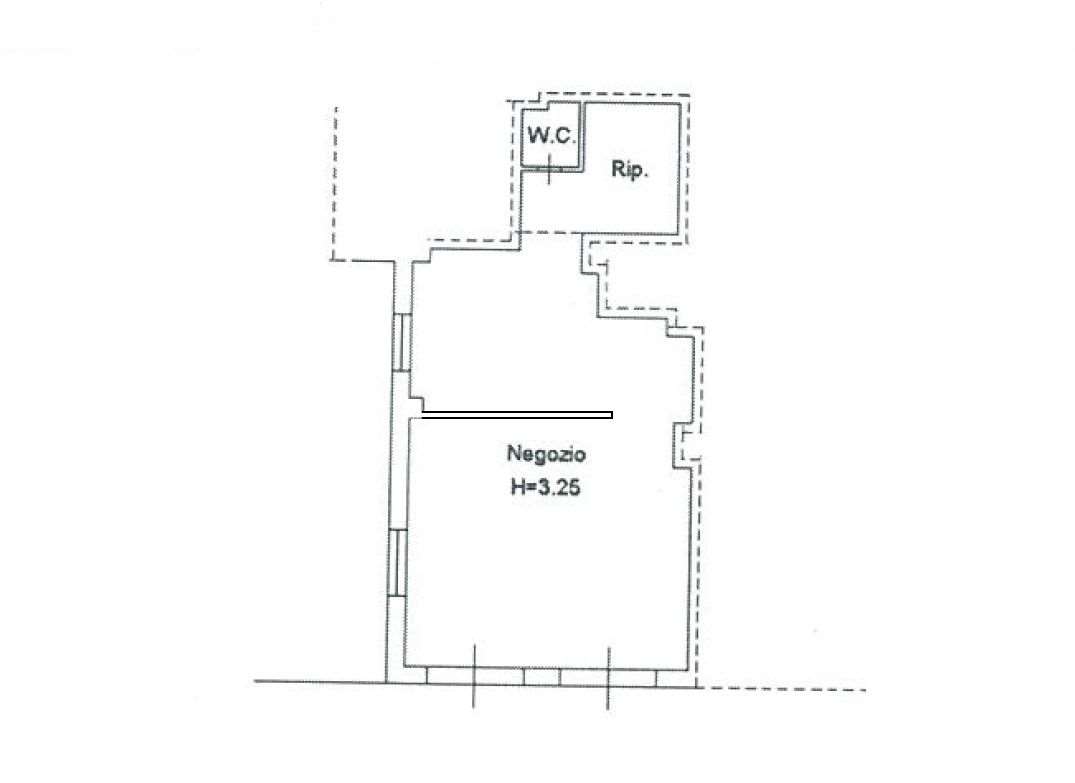
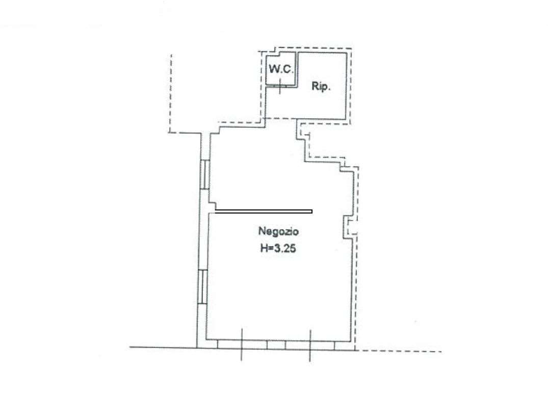
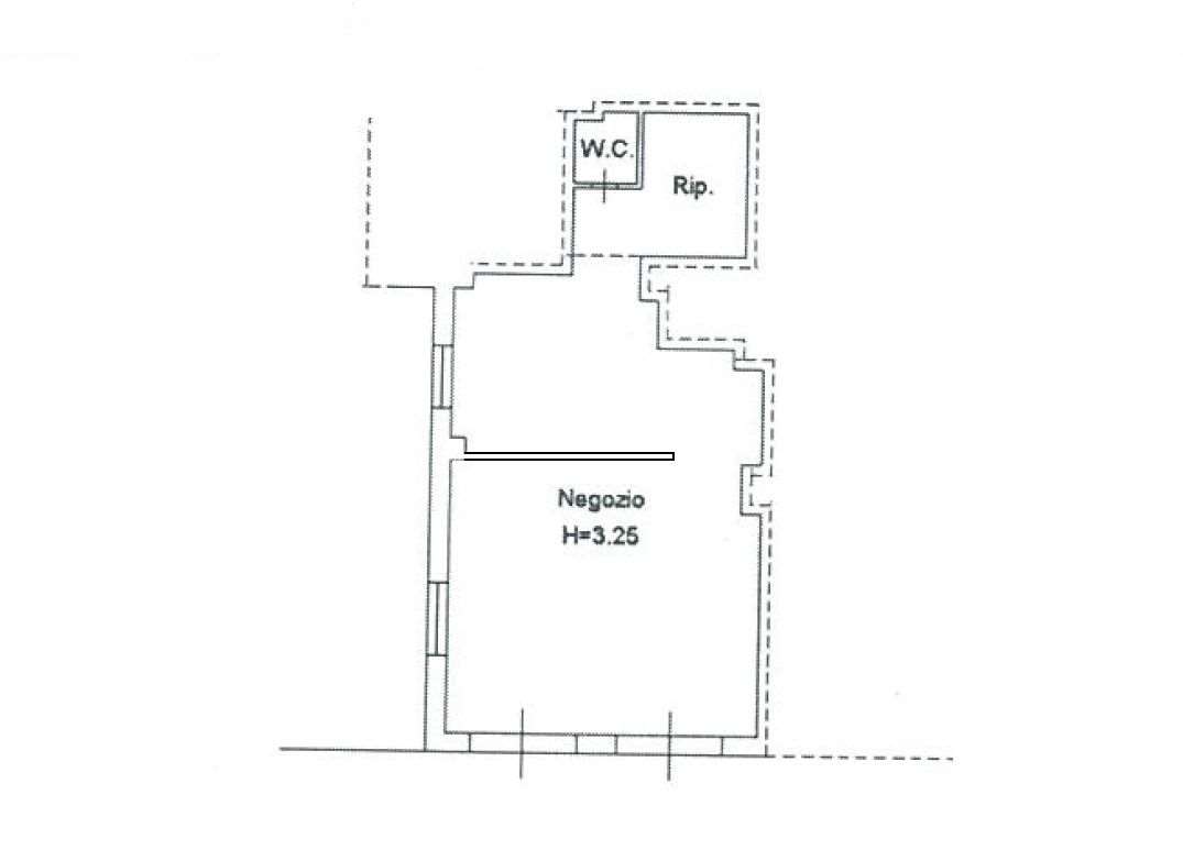
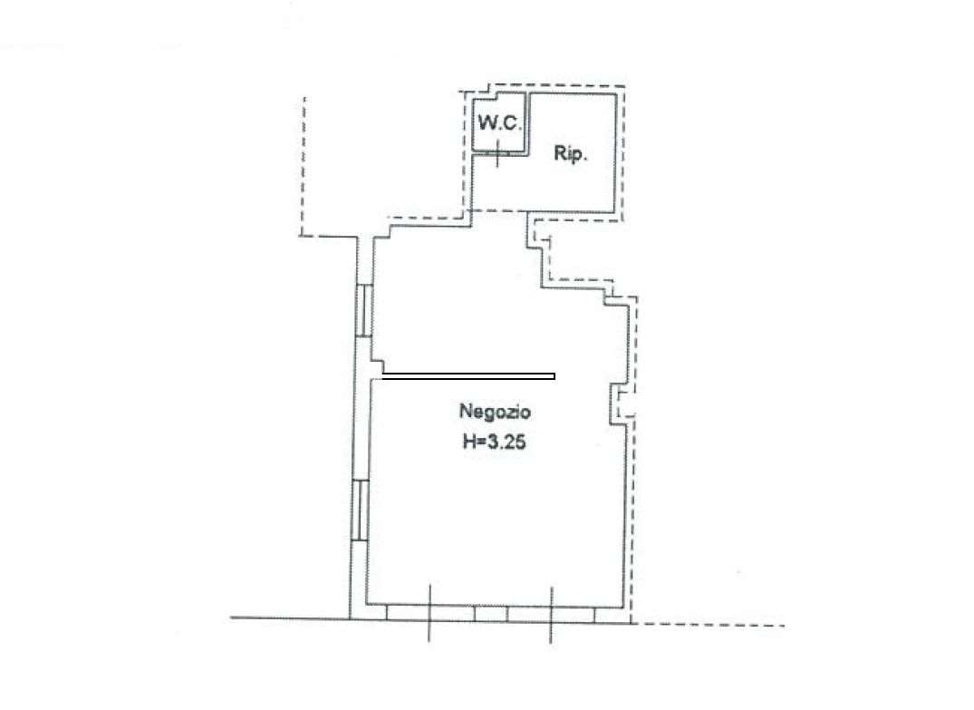
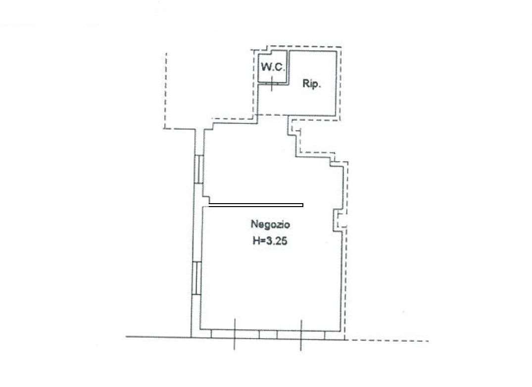
    Agenzia immobiliare QualityCASA propone in vendita NEGOZIO - UFFICIO di 64 m² in vendita a Chiaravalle, occupato con contratto di locazione commerciale dal 2021, canone mensile €450 (rendita lorda 12,56%)
    Composizione: Ingresso da due vetrine, su due vani con ripostiglio e servizio igienico.
    Rif.CHC94 - €43.000
    Referente Nazzareno Raffaelli 3452339932

Altre Informazioni

  • Tipo Impianto: No
  • Numero Vetrine: Due
  • Accesso Disabili: Nessuna Barriera
  • Balconi: No
  • Terrazzi: No
  • Infissi: Metallo
  • Stato Immobile: Discrete Condizioni

Mappa

Planimetrie

Chiedi info su questo immobile

Telefono
Facendo clic sul pulsante «RICHIEDI INFO» accetti Termini di utilizzo e Politica sulla riservatezza

Condividi questo property

Copia

O condividi con

Reset password

Inserisci il tuo indirizzo email e ti invieremo un link per cambiare la tua password.